SIRAF ASSOCIATES
The Practice
Fares Nasserelddine
Architectural/Contracting Services
Interior Design/Bespoke Joinery
Our Portfolio
Contact Us
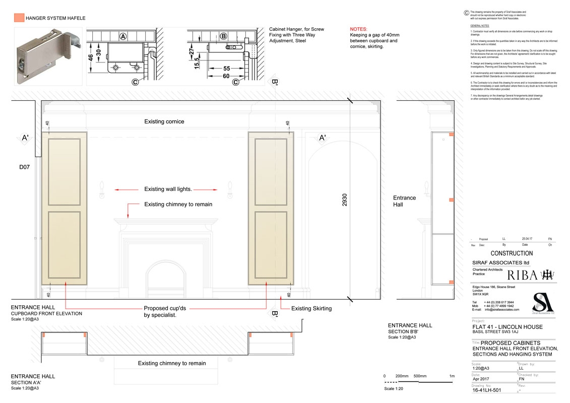
Lincoln House - Basil Street SW3
Lincoln House - Basil Street SW3
Back
Lincoln House - Basil Street SW3